1
2
3
4
5
6
7
8
9
10
11










ontwerp 2016-2017
oppervlakte 160 m2
programma woonhuis met 3 slaapkamers
opdrachtgever particulier
adviseur Van Eden Bouwconstructies (constructeur)
Uitvoering: Aannemingsbedrijf Vreeling bv
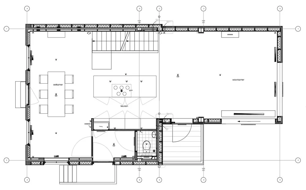
Een vervallen dijkwoning is opnieuw ontworpen en herbouwd, met als uitgangspunt de oorspronkelijke woning die sinds 1997 aan het straatbeeld onttrokken is. Het achterhuis is gebouwd volgens de mogelijkheden die het bestemmingsplan bood en onderscheidt zich in materiaal en detaillering van het voorhuis.
De begane grond heeft een open plattegrond en maakt optimaal gebruik van de uitzichten op het IJ aan de voorzijde en het polderlandschap aan de achterzijde. Op de benedenverdieping is gebruik gemaakt van de hoogteverschillen in de dijk waardoor ook vanuit de diep gelegen vertrekken zicht ontstaat richting tuin en water. Op de zolder ligt de derde slaapkamer met dakkapel aan de IJ-zijde en een werkkamer, die via de vide met de woonkamer is verbonden.
ontwerp 2016-2017
oppervlakte 160 m2
programma woonhuis met 3 slaapkamers
opdrachtgever particulier
adviseur Van Eden Bouwconstructies (constructeur)
Uitvoering: Aannemingsbedrijf Vreeling bv
Een vervallen dijkwoning is opnieuw ontworpen en herbouwd, met als uitgangspunt de oorspronkelijke woning die sinds 1997 aan het straatbeeld onttrokken is. Het achterhuis is gebouwd volgens de mogelijkheden die het bestemmingsplan bood en onderscheidt zich in materiaal en detaillering van het voorhuis.
De begane grond heeft een open plattegrond en maakt optimaal gebruik van de uitzichten op het IJ aan de voorzijde en het polderlandschap aan de achterzijde. Op de benedenverdieping is gebruik gemaakt van de hoogteverschillen in de dijk waardoor ook vanuit de diep gelegen vertrekken zicht ontstaat richting tuin en water. Op de zolder ligt de derde slaapkamer met dakkapel aan de IJ-zijde en een werkkamer, die via de vide met de woonkamer is verbonden.